Menu
売主物件情報
不動産賃貸経営とは
賃貸管理のご提案
賃貸管理業務
弁護士様へのお手伝い
不動産税制の概要
不動産買取り
会社概要
お問い合わせ
物件情報
HOME
物件情報
プラナス大口Ⅴ
プラナス
成約済
プラナス大口Ⅴ
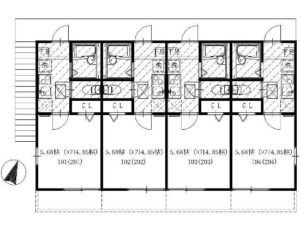
物件概要
交通
JR横浜線「大口」駅徒歩6分
間取
1K+大型ロフト×8戸、充実設備
備考
充実設備、建物及び地盤10年保証
写真
プラナス大口Ⅳ
プラナス妙蓮寺Ⅲ
×
‹
›
販売中物件
販売実績
《弊社売主の新築高級アパート》|【「プラナスシリーズ」】
プラナスシリーズの標準仕様
《弊社売主の新築住宅》|【「パルティールシリーズ」】
《弊社売主の》|【「土地、中古住宅・マンション」】
不動産賃貸投資とは
弁護士様へのお手伝い
賃貸管理のご提案
賃貸管理業務
不動産税制の概要
会社概要
お問い合わせ
お知らせ
2026.02.04
土地・収益物件・中古マンション・戸建買取強化中!
2026.02.04
弊社営業時間は10:00~17:30となっております
2026.02.04
ホームページをリニューアルしました。